ID CP2348830

comision 0% / Garsoniera de vanzare zona CISMIGIU /

Această proprietate nu mai este activă,
te invităm să vizualizezi proprietăți similare

ID CP2348830

61,900 €

Apartament cu 1 camere de vânzare
Cismigiu, Bucuresti
36 mp
1940

Comision 0%

Evaluare la risc seismic: gradul 1 ( RS1 )

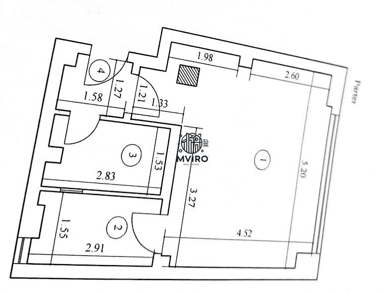
Va prezentam o garsoniera deosebita situata in inima Bucurestiului, in zona Cişmigiu, oferind un mix perfect intre confort, eleganta si accesibilitate.

o Suprafata: 36 mp

o Compartimentare: spatiu bine optimizat, ideal pentru diverse utilizari

o Caracteristici:

o Inaltimea camerelor de 2,80 m ofera un plus de spatialitate si rafinament

o Centrala proprie, pentru un control eficient al costurilor si confort sporit

o Pozitionata la parter inalt, cu vedere superba spre Parcul Cişmigiu

o Destinatii multiple: ideala pentru investitie (inchiriere pe termen lung, regim hotelier), sediu de firma sau locuinta personala

Locatia ultracentrala asigura acces facil la toate punctele de interes ale orasului, iar proximitatea fata de Parcul Cişmigiu ofera un ambient linistit, deosebit de placut.

O proprietate versatila, cu potential excelent de valorificare! Contactati-ne pentru mai multe detalii sau o vizionare!

Citește mai mult

  • Tip apartament
    Garsonieră
  • Compartimentare
    Semidecomandat
  • Număr camere
    1
  • Număr bucătării
    1
  • Număr băi
    1
  • Geam la baie
    Da
  • Etaj
    Parter
  • Suprafață utilă
    36 mp
  • Suprafață construită
    40 mp
  • Disponibilitate
    Imediat
  • Confort
    1
  • Stare interior
    Finisat modern
  • Imobil
    Bloc de apart.
  • Stadiu construcție
    Finalizată
  • An construcție
    1940
  • Risc seismic
    Risc I
  • Număr etaje clădire
    9

Facilități

Apă
Apometre
Aragaz
Bucătărie închisă
Cadă
Calorifere
Canalizare
CATV
Centrală proprie
Contor electric
Contor gaz
Curent
Faianță
Ferestre PVC
Frigider
Gaz
Hotă
Interfon
Internet
Lift
Mijloace de transport în comun
Mobilat complet
Parchet
Străzi asfaltate
TV
Ușă intrare lemn
Uși interior lemn
Vopsea lavabilă
Necesare:

Site-ul nu poate funcționa corect fără aceste cookie-uri. Vezi cookie-urile

Statistică:

Strângem statistici anonime despre voi, vizitatorii unici, pentru a vă îmbunătăți experiența dumneavoastră. Vezi cookie-urile

Marketing:

Pentru a ne promova mai eficient serviciile noastre, folosim cookies pentru a vă identifica și a vă oferi proprietăți și servicii personalizate. Vezi cookie-urile

Acest site folosește cookies, află detalii. Alege ce tipuri de cookies dorești să permitem: